모듈러주택,목조주택(31평형) Sh-24
페이지 정보

본문
'첨단디자인하우스'
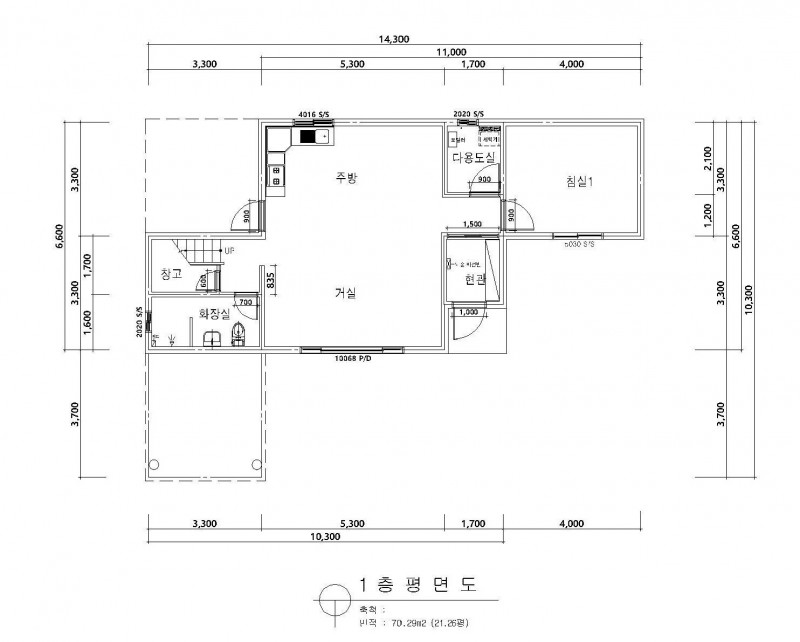
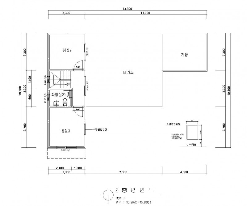
Sh-24 31PY
첨단디자인하우스는 모듈러주택 설계, 제작 전문 기업으로
빠른 시공과 높은 품질, 합리적 비용을 바탕으로
고객 맞춤형 주거공간을 구현합니다.
겉모습만 모듈러가 아닙니다.
구조부터 다릅니다.
저가형 컨테이너 개조 방식이 아닌,
주거용 설계를 기반으로 한
전문 모듈러 시스템을 적용합니다.
내구성·안전성·단열 성능을 균형 있게 갖춘
믿을 수 있는 공간을 제공합니다.





첨단디자인하우스는 기획부터 제작, A/S까지
한 번에 책임지는 제조 전문 기업입니다.
※ 금액 : 평당 430 ~ 450만원(부가세 별도)
정확한 견적은 설계 상담 후 안내드립니다.

※ 상담, 견적, 카달로그 문의 ※

(위 링크를 누르면 블로그로 연결됩니다)
협력업체 : (주)씨홀스하우스
- 이전글모듈러주택,목조주택(30평형, 다락15평 포함) Sh-25 26.03.17
- 다음글모듈러주택,목조주택(32평형) Sh-23 26.03.17




